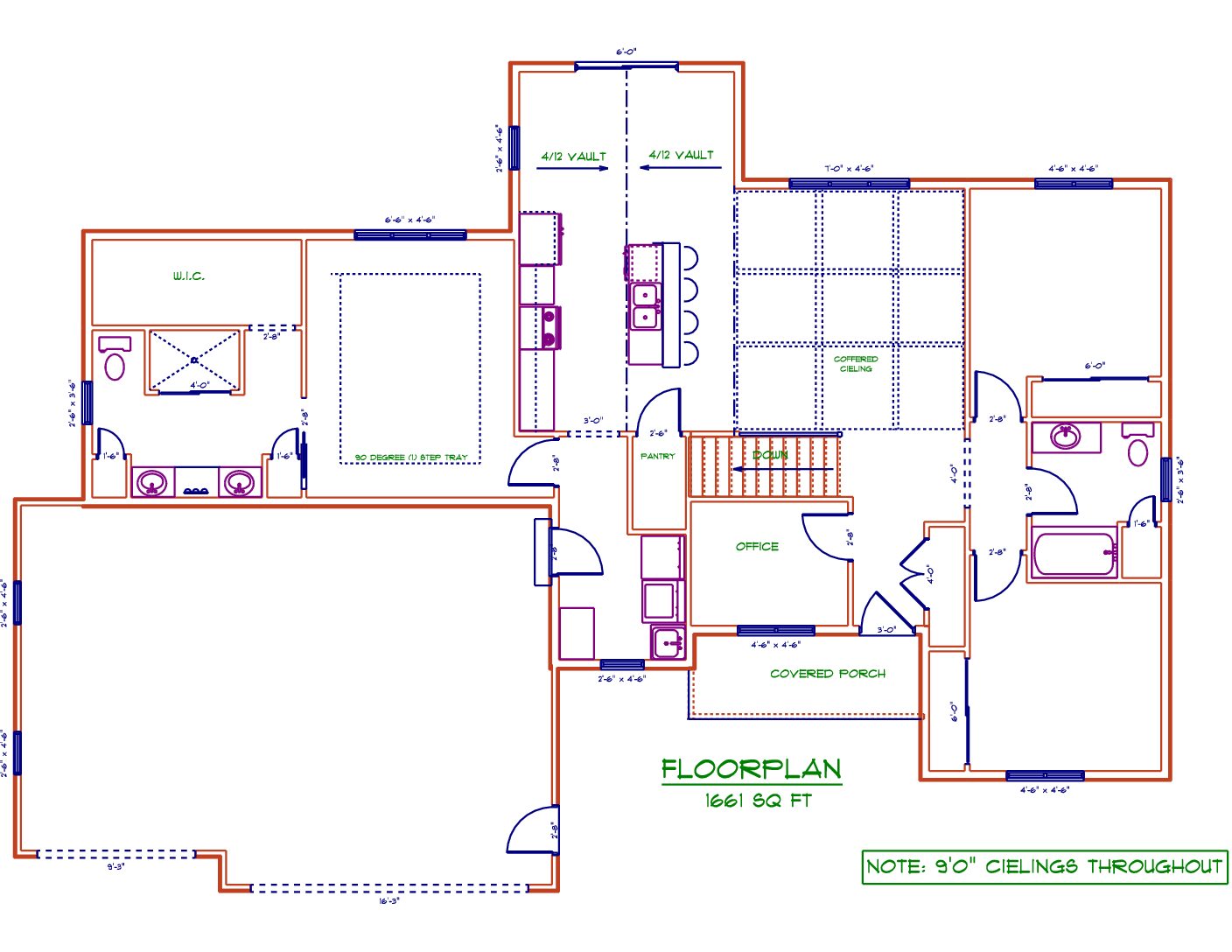
1661 Ranch

Ranch Style Home – 1661 SQ Ft. 3 Bedroom 2 Full Bathrooms Nice Master Suite W/ Walk-in Closet At Home Office Open Concept Spacious Kitchen W/ Snack Bar Island 2.5 Car Attached Garage

Ranch Style Home – 1661 SQ Ft.

  • 3 Bedroom
  • 2 Full Bathrooms
  • Nice Master Suite W/ Walk-in Closet
  • At Home Office
  • Open Concept Spacious Kitchen W/ Snack Bar Island
  • 2.5 Car Attached Garage

Reviews

There are no reviews yet.

Be the first to review “1661 Ranch”

Your email address will not be published. Required fields are marked *


Call Russ Cherney

920- 205 – 2267

Russchern.ics@gmail.com


@2025. All Right Reserved